Tời tay Tiger Lifting SF-2200, nâng 1 tấn Industrial Winch. Dùng cho cả ứng dụng kéo cáp và cuộn cáp theo chiều thẳng đứng (ứng dụng nâng). Tay đòn thiết kế tháo lắp được chỉ với 2 bulong đai ốc kèm theo. Cơ cấu bánh nhông cao cấp, nằm trong hộp kín, không cần bảo dưỡng dầu mỡ.
Tay quay cho phép tời đảo hướng cáp thông qua lưỡi gạt ngay trên phần tay. Điểm trung tính nằm giữa 2 chiều nâng - hạ. Bạn có thể dùng khi cần kéo không tải để thu hồi hoặc xả cáp nhanh hơn. Cơ cấu bánh răng lưỡi gà cũng cho phép bạn dừng kéo hoặc nhả bất cứ khi nào có tải.
Cơ cấu nhông mang lại cho người dùng lợi ích khi chỉ cần một lực rất nhỏ cũng có thể kéo cáp được. Tỷ số truyền lớn, lực kéo mạnh, chắc chắn và hiệu quả làm việc cao.
Tời tay công nghiệp 2 tấn sử dụng hoàn toàn bằng tay. Ứng dụng trong hầu hết các ngành công nghiệp và dân dụng. Đặc biệt cho công nghiệp đóng tàu, lưới cá hoặc hải cảng.
Tời tay Tiger Lifting SF-2200
lực kéo 2 tấn, nâng 1 tấn
Có rất nhiều thông số kỹ thuật cần quan tâm đối với tời tay 2 tấn này. Cơ bản dưới đây là các thông tin cần thiết cả cho người thiết kế hệ thống và người sử dụng thông thường. Tời tay SF-2200 của hãng Tiger là một thiết bị chất lượng cao. Chuyên dùng cho các công việc nâng hạ và kéo tải trọng lớn.
Khả năng nâng tời tay 2200 lbs (1000 kg) và kéo 4400 lbs (2000 kg). SF-2200 là phù hợp cho nhiều ứng dụng công nghiệp khác nhau. Tời này nổi bật với nhiều tính năng ưu việt. Giúp tăng cường hiệu quả làm việc và đảm bảo an toàn cho người sử dụng.
Tay cầm tời tay SF-2200 dạng bánh cóc, đảo 2 chiều
Một trong những đặc điểm nổi bật của tời tay SF-2200 là tay cầm dạng bánh cóc. Cho phép di chuyển tay cầm theo cả hai chiều. Thuận tiện cho việc nâng và hạ tải. Hệ thống phanh kích hoạt theo tải trọng giúp giữ tải ở bất kỳ vị trí nào, mang lại sự an tâm cho người sử dụng. Các bánh răng và phanh được bảo vệ hoàn toàn, ngăn ngừa sự xâm nhập của bụi, bẩn và mưa, tăng độ bền cho thiết bị.
 |
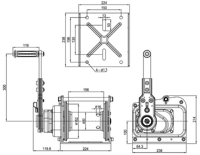
- Tải trọng kéo: 2 tấn
- Lực kéo nâng: 1 tấn
- Lực quay tay tối thiểu: 10 kg
- Tỷ số nhông truyền động: 22:2:1
- Đường kính trục tang tời: Ø80mm
- Chiều dài tay đòn: 300mm, bọc cao su phần nắm tay.
- Trọng luợng khi có tay đòn: 17,5kg
- Cáp biểu kiến có đường kính: Ø8mm
- Chiều dài cuộn được ứng với đường kính cáp Ø8mm: 45m
- Khoảng cách lỗ bắt bulong: 150mm
- Kích thước chân đế bắt sàn: 238x224mm
- Khoảng cách mặt tang tời: 156mm
- Đường kính tang tời: Ø152mm
- Lỗ xỏ cáp: Ø16mm
- Khoảng tự do trống cho tay quay: ≥ 116 + 119.8mm ≈ 250mm
|
Trên đây bạn thấy rằng, đường kính cáp càng lớn, số mét cáp cuộn lại được càng ít và ngược lại. ⇒ Nếu bạn cần loại tời có tải trọng nhỏ hơn, có thể tham khảo mode
tời kéo cáp tay 360kg BHW-0800.
Tời tay SF-2200 được thiết kế để vận hành dễ dàng với lực tay rất nhỏ, phù hợp cho việc lắp đặt ở những không gian hẹp. Nhiệt độ hoạt động của thiết bị dao động từ -40°C đến +80°C, và có tùy chọn mở rộng từ -60°C đến +80°C, đáp ứng nhu cầu sử dụng trong nhiều điều kiện môi trường khác nhau.
Thuyết minh chi tiết tời tay 2 tấn Tiger Lifting SF-2200
Thanh sắt bắt ngang vừa là tay xách vừa là thanh giữ cho cáp không bung khu đã cuốn đầy tải. Nẫy gạt đảo chiều quay cáp, dừng mọi ví trí mong muốn mà không lo tuột cáp. Vị trí N dùng khi cần cuốn cáp nhanh, không tải. Lỗ kỹ thuật trước khi gắn cáp vào tời tay. Vít chuyên dụng để giữ cáp chắc chắn trên tang tời. Bạn cần xỏ đúng cách để đảm bảo rằng cáp sẽ không bung ra trong quá trình vận hành.
Hướng và thứ tự xỏ cáp mỡ bò vào tời kéo cáp. Trên thành của tang tời có ghi chú hướng của sợi cáp thoát ra hoặc cuộn lại. Bạn cần làm đúng chỉ dẫn để có sự an toàn là cao nhất và phát huy hết năng lực của SF-2200. Vị trí gắn tay quay của tời quay tay 2 tấn. Bạn cần chú ý đến hướng gắn vào và luôn luôn phải có long đền vênh chêm bên trong.
Vị trí các lỗ kỹ thuật trên mắt đế của tời tay 2 tấn Industrial Winch. Các lỗ điều chỉnh dung sai, bắt vít cố định xuống vị trí công tác. Bản vẽ kích thước chi tiết vui lòng cuộn lên phía trên. Rất hữu dụng cho người làm công tác thiết kế hệ thống, tích hợp trên tổng thể.
Tời tay SF-2200 đầy đủ chứng chỉ kiểm định
Tời tay được chứng nhận đầy đủ với chứng chỉ kiểm định hoặc EC Declaration of Conformity, đảm bảo tuân thủ các yêu cầu về an toàn và sức khỏe của Chỉ thị Máy móc 2006/42/EC. Ngoài ra, các thiết kế tùy chỉnh có thể được cung cấp theo yêu cầu để phù hợp với nhu cầu cụ thể của khách hàng.
Với các tính năng và thông số kỹ thuật vượt trội, tời tay SF-2200 của hãng Tiger là giải pháp hoàn hảo cho các công việc nâng hạ và kéo tải trọng nặng, mang lại hiệu quả và an toàn tối đa cho người sử dụng.